3-Zimmer-Wohnung im kernsanierten historischem Wohnhaus
-
Diese geräumige Wohnung befindet sich im Obergeschoss eines von den Eigentümern mit viel Liebe zum Detail und unter Verwendung von ökologischen Baumaterialien und historischen Bauelementen kernsanierten Mehrfamilienwohnhaus mit 5 Wohneinheiten. Der hinter dem Gebäude befindliche Garten kann, in Absprache mit den übrigen Hausbewohnern, gemeinschaftlich genutzt werden. Der Gartenpavillon lädt zum Verweilen ein und man kann hier wunderbar den Ausblick auf die nahe gelegene Weser genießen. Das Gebäude wird über eine Gas-Zentralheizung beheizt. Eine Gemeinschafts-Satelliten-Anlage steht allen Mietparteien zur Verfügung.
-
Flächen
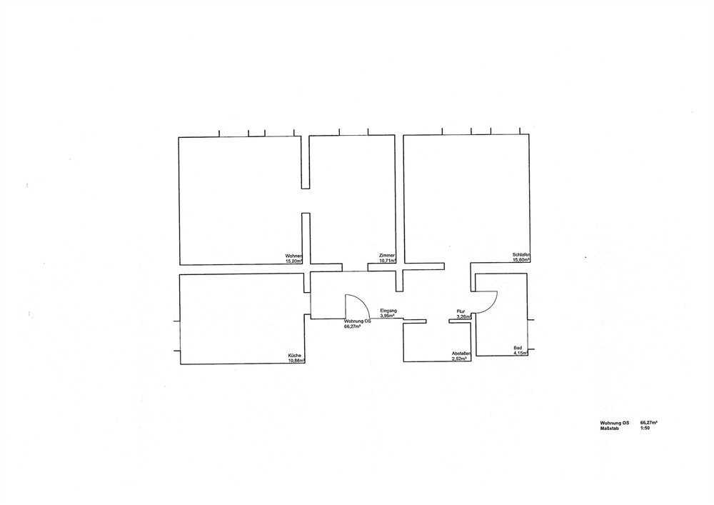
- Wohnfläche: 66,27 m²
- Beheizbare Fläche: 66,27 m²
- Zimmer insgesamt: 3
- Etage: 1
Zustand & Erschließung
- Baujahr: 2018
Sonstiges
- Immobilie ist verfügbar ab: 01.06.2026
- Wohnberechtigungsschein erforderlich: nein
-
Diese gemütliche 3-Zimmer-Wohnung verfügt über ein Wohnzimmer und 2 Schlafzimmer mit Echtholzdielen. Das moderne, weiße Duschbad ist mit grauen Bodenfliesen ausgestattet. Ein Abstellraum in der Wohnung sowie ein Verschlag auf dem Dachboden bieten Ihnen weiteren Stauraum.
- Heizungsart: Zentralheizung
- Befeuerung: Gas
- Badausstattung: Dusche, Fenster
-
Abstellraum
-
Gartennutzung
-
- Energieausweis-Art: Verbrauch
- Energieausweis gültig bis: 31.03.2036
- Energieverbrauchskennwert: 86,2000 kWh/(m²*a)
- Primärenergieträger: Gas
- Energieeffizienzklasse: C
- Energieausweis-Ausstellungsdatum: 10.03.2026
- Energieausweis-Jahrgang: ab Mai 2014
-
Das Objekt befindet sich zentrumsnah in der Innenstadt der attraktiven Kreisstadt Höxter mit rd. 30.000 Einwohnern. Höxter liegt an der Weser im Weserbergland und wird zur Region Hochstift Paderborn gerechnet. Die Fußgängerzone mit diversen Geschäften, Gastronomie, Apotheken und Ärzten ist fußläufig in wenigen Minuten zu erreichen. Der nahegelegene Weserradweg lädt zu Spaziergängen und Radtouren im Weserbergland ein. Auch der Bahnhof mit Verbindungen Richtung Holzminden und Paderborn ist fußläufig erreichbar.
-
- Nettokaltmiete: 530 €
- monatl. Betriebs-/Nebenkosten: 130 €
- Warmmiete: 660 €
- Kaution: 1.500 €








