Wohnimmobilie > DG-Wohnung
Zu Vermieten

3-Zimmer-Wohnung mit Balkon

An der Sporthalle 2, Escher, 37632 Eschershausen
532,16 € Kaltmiete

301.5301.1006
2000
82 m²
3
  • Mehrfamilienhaus mit 6 Wohneinheiten. Das Gebäude wird über eine Gasetagenheizung mit Wärme versorgt. Heizkosten sind gesondert mit dem Energieversorger abzurechnen.

    Jeder Wohnung stehen der Trockenboden, ein Dachbodenanteil sowie der Garten zur Verfügung.

  • Flächen

    • Wohnfläche: 81,87 m²
    • Beheizbare Fläche: 81,87 m²
    • Zimmer insgesamt: 3
    • Etage: 13
    • Stellplätze: 1
    • Balkone: 1

    Zustand & Erschließung

    • Baujahr: 2000

    Sonstiges

    • Immobilie ist verfügbar ab: 01.12.2025
    • Wohnberechtigungsschein erforderlich: nein
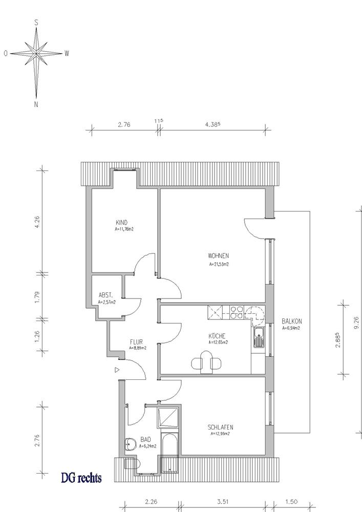
  • Über den zentralen Flur gelangen Sie in alle Räume. Den nach Westen ausgerichteten Balkon erreichen Sie über das Wohnzimmer. Das Badezimmer ist mit einer Badewanne, Dusche, Waschbecken und WC ausgestattet. PVC-Fußboden sowie laminatfußboden wurde verlegt.

    • Heizungsart: Etagenheizung
    • Befeuerung: Gas
    • Badausstattung: Dusche, Badewanne, Fenster
    • Abstellraum
    • Gartennutzung
    • Wasch-/Trockenraum
    • Energieausweis-Art: Verbrauch
    • Energieausweis gültig bis: 31.03.2035
    • Energieverbrauchskennwert: 172,5000 kWh/(m²*a)
    • Primärenergieträger: Gas
    • Energieeffizienzklasse: F
    • Energieausweis-Ausstellungsdatum: 09.03.2025
    • Energieausweis-Jahrgang: ab Mai 2014
  • Die Wohnung befindet sich in einem 6 Familienhaus und zeichnet sich durch ihre ruhige Wohnlage aus.Von der Wohnung aus hat man eine sehr schöne Aussicht auf das Ithtal. In der Nähe befinden sich eine Schule und ein Schwimmbad.

    • Nettokaltmiete: 532,16 €
    • monatl. Betriebs-/Nebenkosten: 150 €
    • Warmmiete: 697,16 €
    • Kaution: 1.596,48 €

Dein Ansprechpartner bei uns

Tim Tillner

Sicher!