Wohnimmobilie > DG-Wohnung
Zu Vermieten

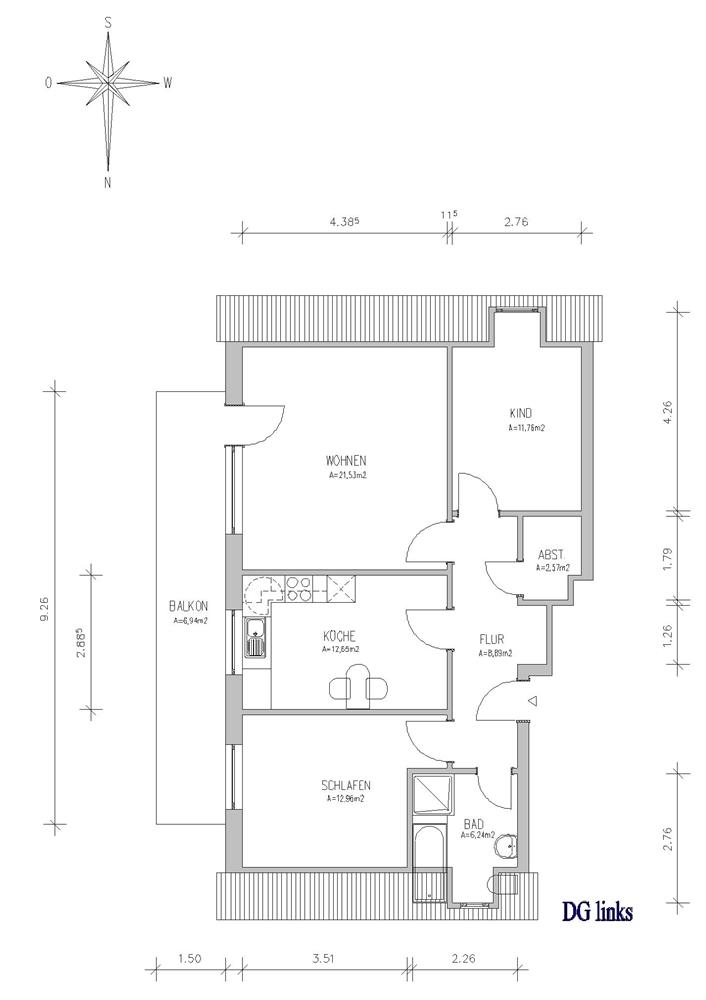
3-Zimmer-Wohnung mit Balkon

An der Sporthalle 4, 37632 Eschershausen
570 € Kaltmiete

301.5413.1005
1998
82 m²
3
  • Mehrfamilienwohnhaus mit 6 Wohneinheiten. Das Gebäude wird über eine Gas-Etagenheizung beheizt. Jeder Wohnung steht der Trockenboden, ein Dachbodenanteil sowie der Garten zur Verfügung. Ein eigener Kellerraum bietet jeder Mieteinheit zusätzlichen Stauraum.

  • Flächen

    • Wohnfläche: 81,87 m²
    • Beheizbare Fläche: 81,87 m²
    • Zimmer insgesamt: 3
    • Etage: 13
    • Balkone: 1

    Zustand & Erschließung

    • Baujahr: 1998

    Sonstiges

    • Immobilie ist verfügbar ab: 01.04.2026
    • Wohnberechtigungsschein erforderlich: nein
  • Geräumige Wohnung mit zentralem Flur über den Sie alle Räume betreten können. Das Tageslichtbadezimmer ist mit einer Dusche, Badewanne, Waschbecken und WC ausgestattet. Ein kleiner Abstellraum steht Ihnen zur Verfügung.

    • Heizungsart: Etagenheizung
    • Befeuerung: Gas
    • Badausstattung: Dusche, Badewanne, Fenster
    • Abstellraum
    • Wasch-/Trockenraum
    • Energieausweis-Art: Bedarf
    • Energieausweis gültig bis: 31.03.2035
    • Endenergiebedarf: 162,9000 kWh/(m²*a)
    • Primärenergieträger: Gas
    • Energieeffizienzklasse: F
    • Energieausweis-Ausstellungsdatum: 09.03.2025
    • Energieausweis-Jahrgang: ab Mai 2014
  • Ruhige Wohnlage mit toller Aussicht auf das Ithtal.
    In der Nähe befindet sich eine Schule und ein Schwimmbad.

    • Nettokaltmiete: 570 €
    • monatl. Betriebs-/Nebenkosten: 155 €
    • Warmmiete: 725 €
    • Kaution: 1.710 €

Dein Ansprechpartner bei uns

Jan Weißferdt

Sicher!