Geräumige 3-Zimmer-Wohnung mit Balkon
-
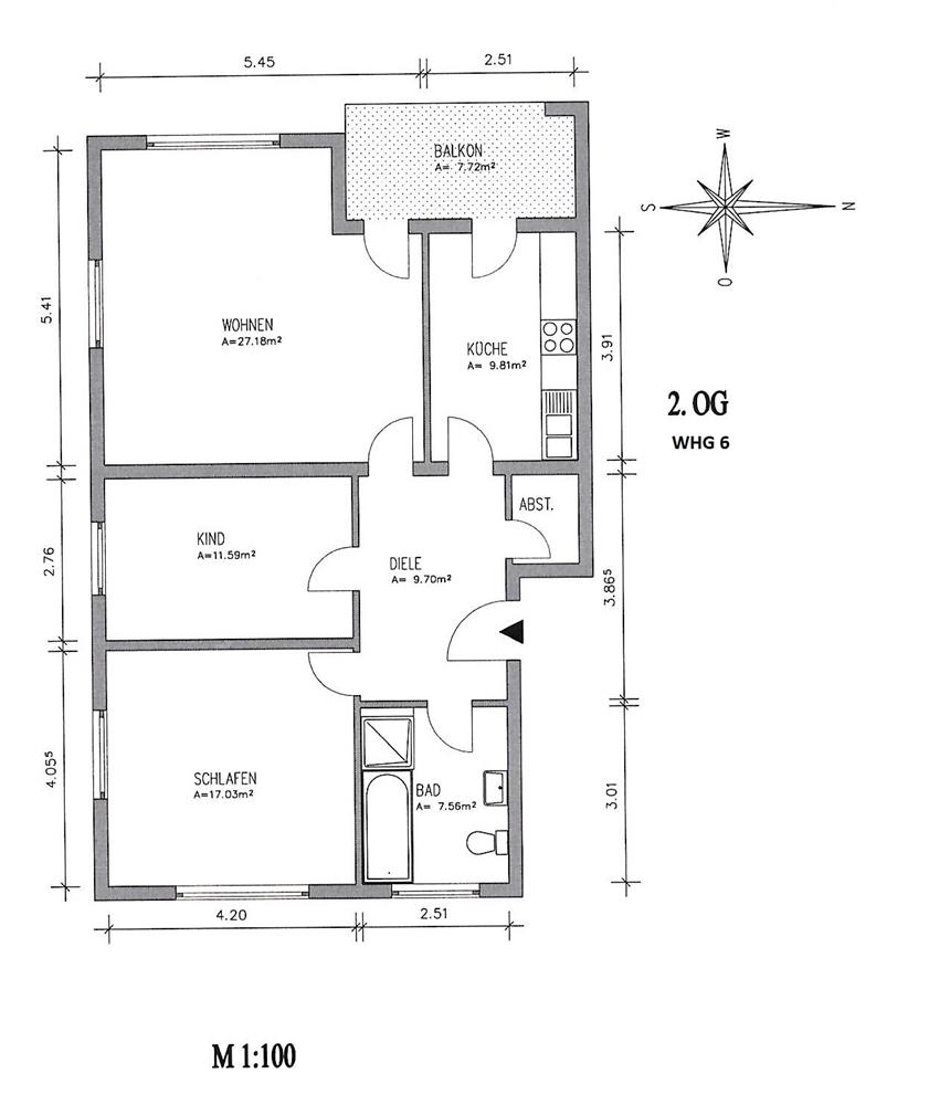
Bei dieser ansprechenden Immobilie handelt es sich um eine gepflegte Wohnung im zweiten Stock. Zu dem Objekt zählen drei hübsche Zimmer. Den Balkon können Sie an sonnigen Tagen zum zweiten Wohnzimmer machen. Des Weiteren gehört ein Kellerraum zur Immobilie, der Ihnen ausreichend Stauraum bietet.
Es handelt sich um ein Mehrfamilienwohnhaus mit 6 Wohneinheiten.
-
Flächen
- Wohnfläche: 82,52 m²
- Beheizbare Fläche: 82,52 m²
- Zimmer insgesamt: 3
- Etage: 2
- Stellplätze: 1
- Balkone: 1
Sonstiges
- Immobilie ist verfügbar ab: 01.08.2025
- Wohnberechtigungsschein erforderlich: nein
-
Laminat- und Fliesenfußboden
Modernes Tageslichtbad mit Badewanne, Dusche, Waschbecken und WC
zentraler Flur
Balkon
zentrale Warmwasserversorgung
Abstellraum- Heizungsart: Zentralheizung
- Befeuerung: Gas
- Badausstattung: Dusche, Badewanne, Fenster
-
Abstellraum
-
Kabel/Sat-TV
-
- Energieausweis-Art: Verbrauch
- Energieausweis gültig bis: 31.03.2024
- Energieverbrauchskennwert: 144,0000 kWh/(m²*a)
- Primärenergieträger: Gas
- Energieausweis-Ausstellungsdatum: 31.03.2014
- Energieausweis-Jahrgang: vor 2014
-
Holzminden ist eine Kleinstadt im südlichen Niedersachsen. Das Mittelzentrum ist die Kreisstadt des Landkreises Holzminden in der Metropolregion Hannover-Braunschweig, Göttingen-Wolfsburg. Sie beherbergt einen Campus der HAWK.
Die im Zentrum des Weserberglands an der Holzminden und Weser gelegene Kleinstadt wird als „Stadt der Düfte und Aromen“ beworben; Symrise und Stiebel Eltron sind die wichtigsten Arbeitgeber der Stadt.
Das Objekt ist nur wenige Gehminuten vom Zentrum entfernt.
-
- Nettokaltmiete: 536,38 €
- monatl. Betriebs-/Nebenkosten: 210 €
- Warmmiete: 766,38 €
- Kaution: 1.609,14 €







